Casa indipendente in Via Edmondo de Amicis con due unità abitative da ristrutturare e ampio giardino.
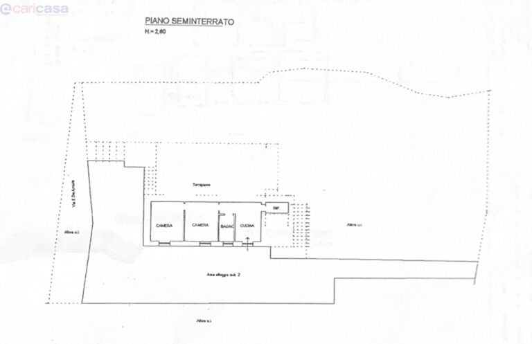
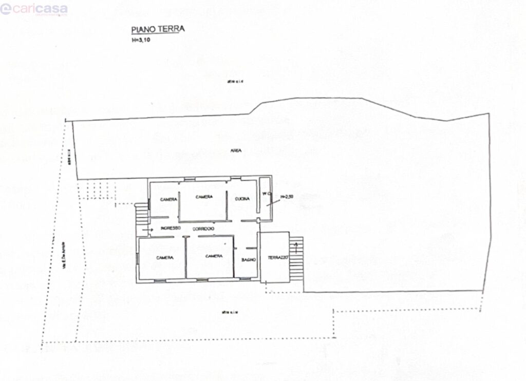
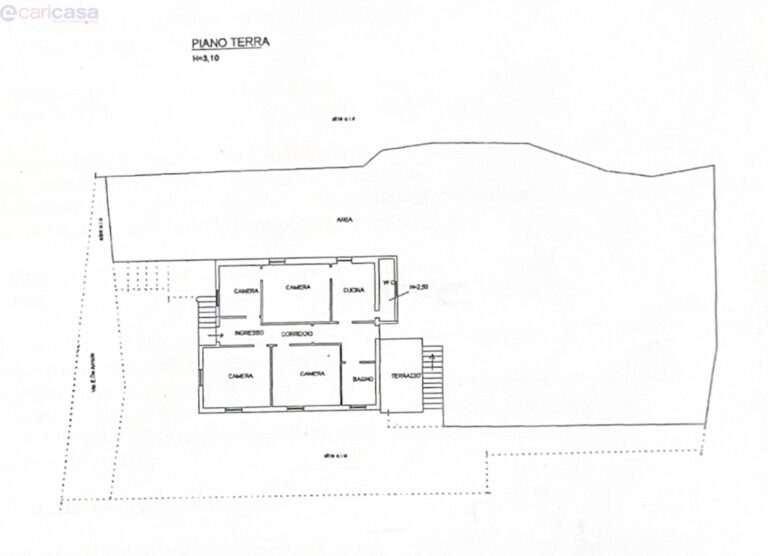
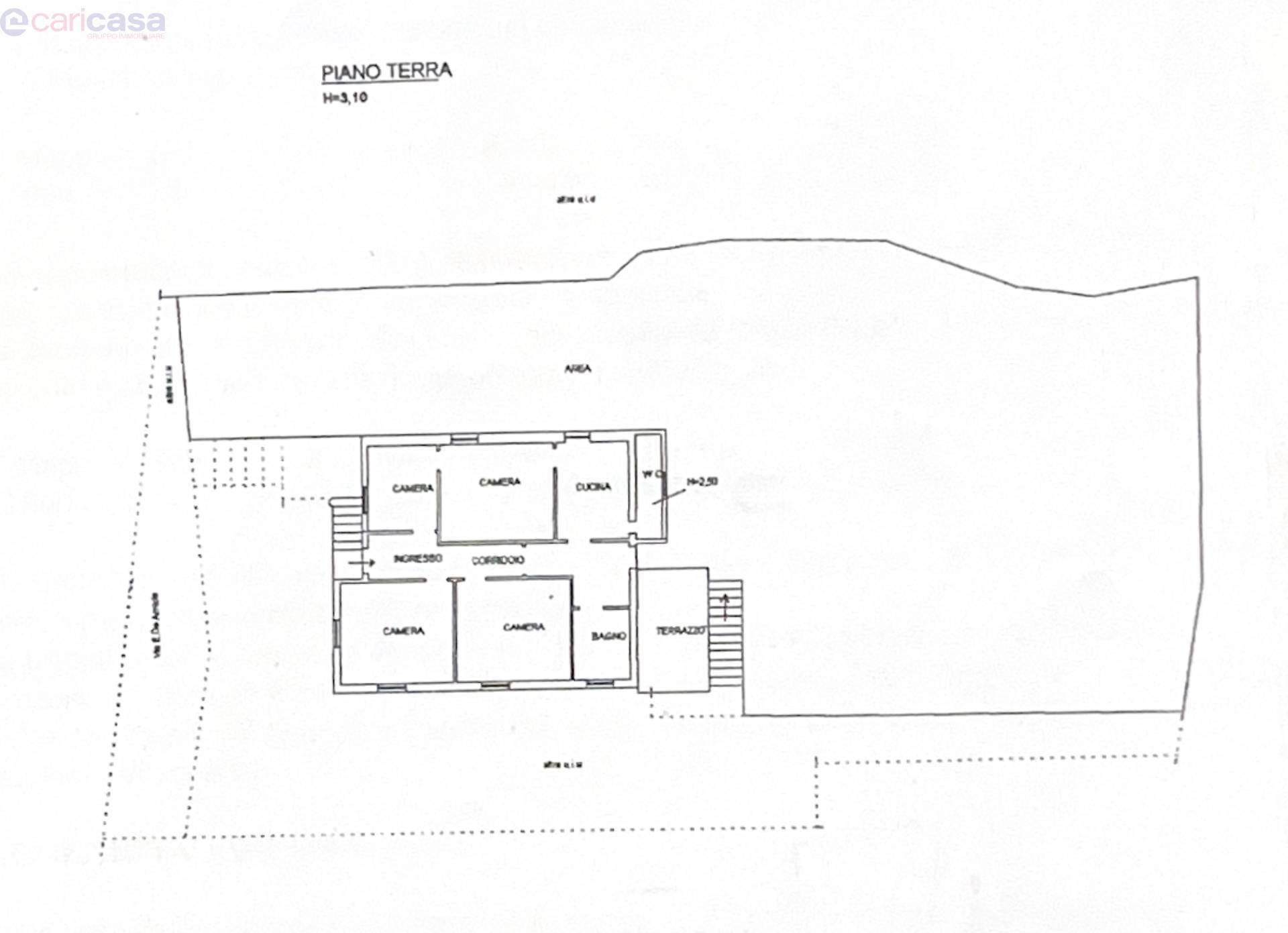
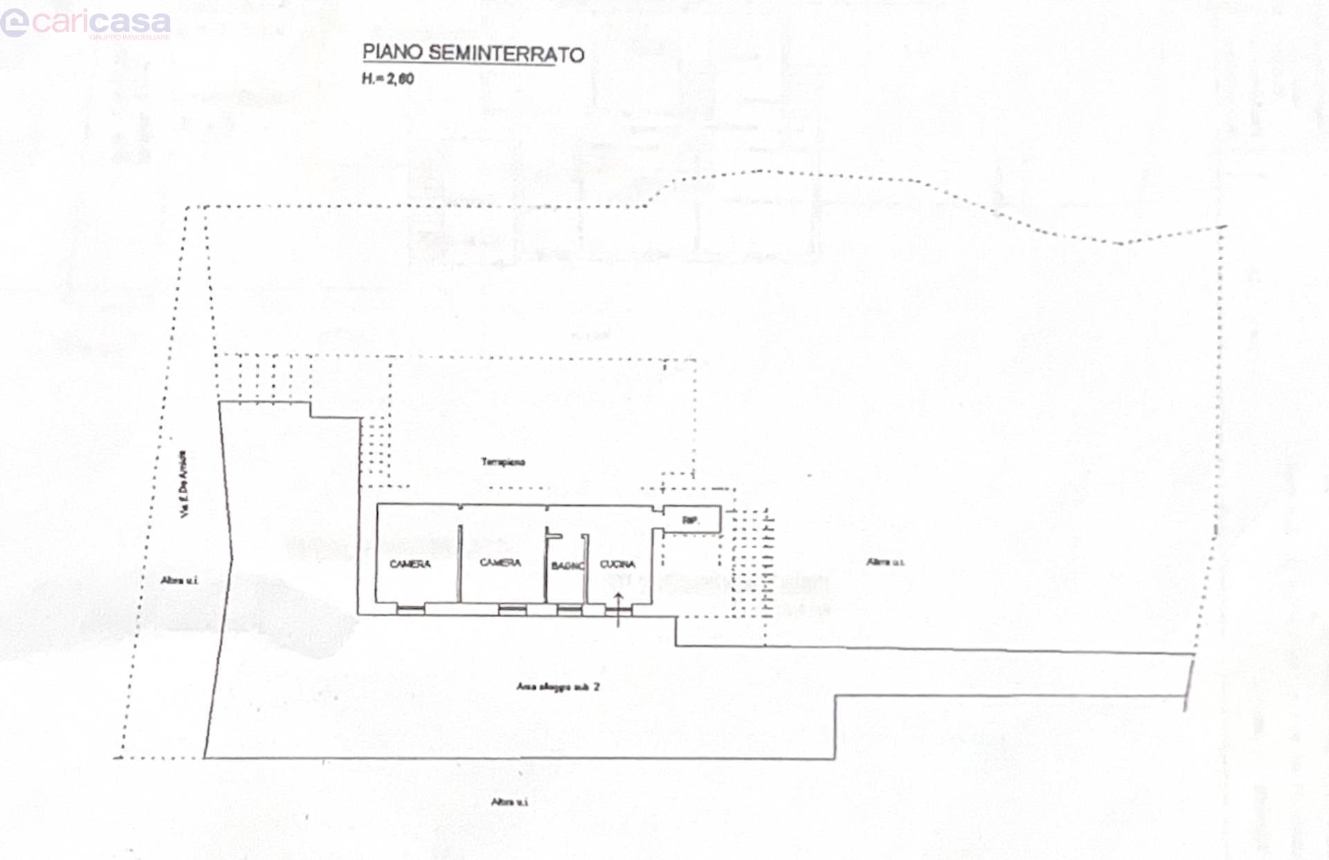
In zona centrale e residenziale, a soli 5 minuti dal centro città, proponiamo in vendita una soluzione indipendente composta da due unità immobiliari separate, ideale per chi cerca ampi spazi o una soluzione per più nuclei familiari.L’immobile, immerso nel verde e con grande potenziale, necessita di ristrutturazione, offrendo la possibilità di creare ambienti moderni e funzionali.Al piano terra si sviluppa un ampio pentalocale con quattro camere da letto, cucina, due bagni e terrazzo; mentre al piano semi-interrato troviamo un trilocale composto da due camere da letto, cucina, bagno ed una comoda cantina.
La proprietà è circondata da un’area verde di circa 900m², ideale per trascorrere il tempo all’aperto, con la possibilità di creare posti auto privati.
Un’opportunità perfetta per chi desidera grandi ambienti da vivere in tranquillità e con la propria indipendenza, a pochi passi dai servizi principali e dal centro città di Sanremo.