Home > Immobili > vendita > casa semindipendente – strada capo nero

casa semindipendente – strada capo nero

€ 310.000
CSR1-1919

Sanremo

€310000
TIPOLOGIA:
Casa semindipendente
CAMERE:
2
BAGNI:
1
SUPERFICIE:
85 mq
LOCALI:
3
RISCALDAMENTO:
Autonomo
PREZZO:
€310.000

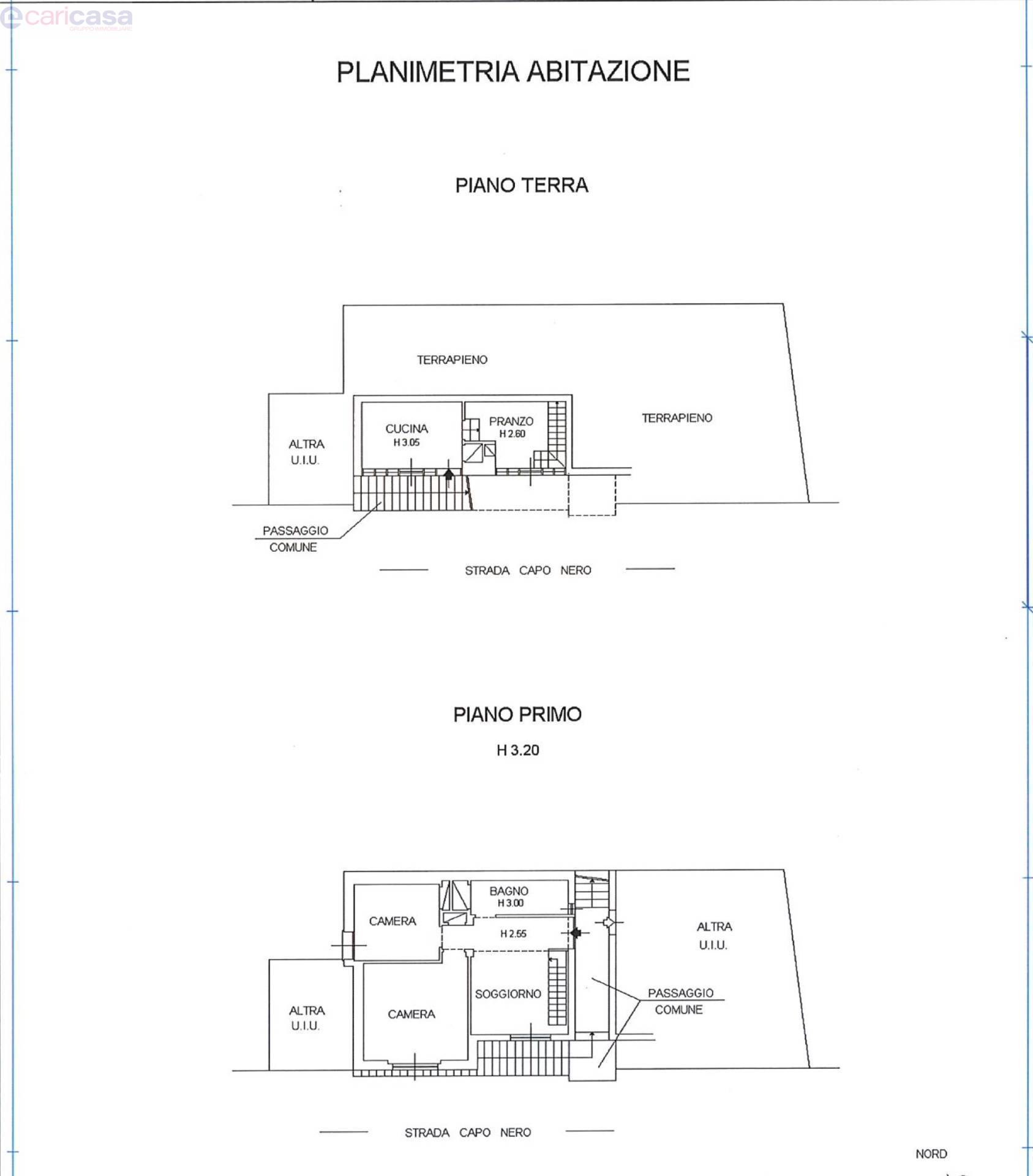
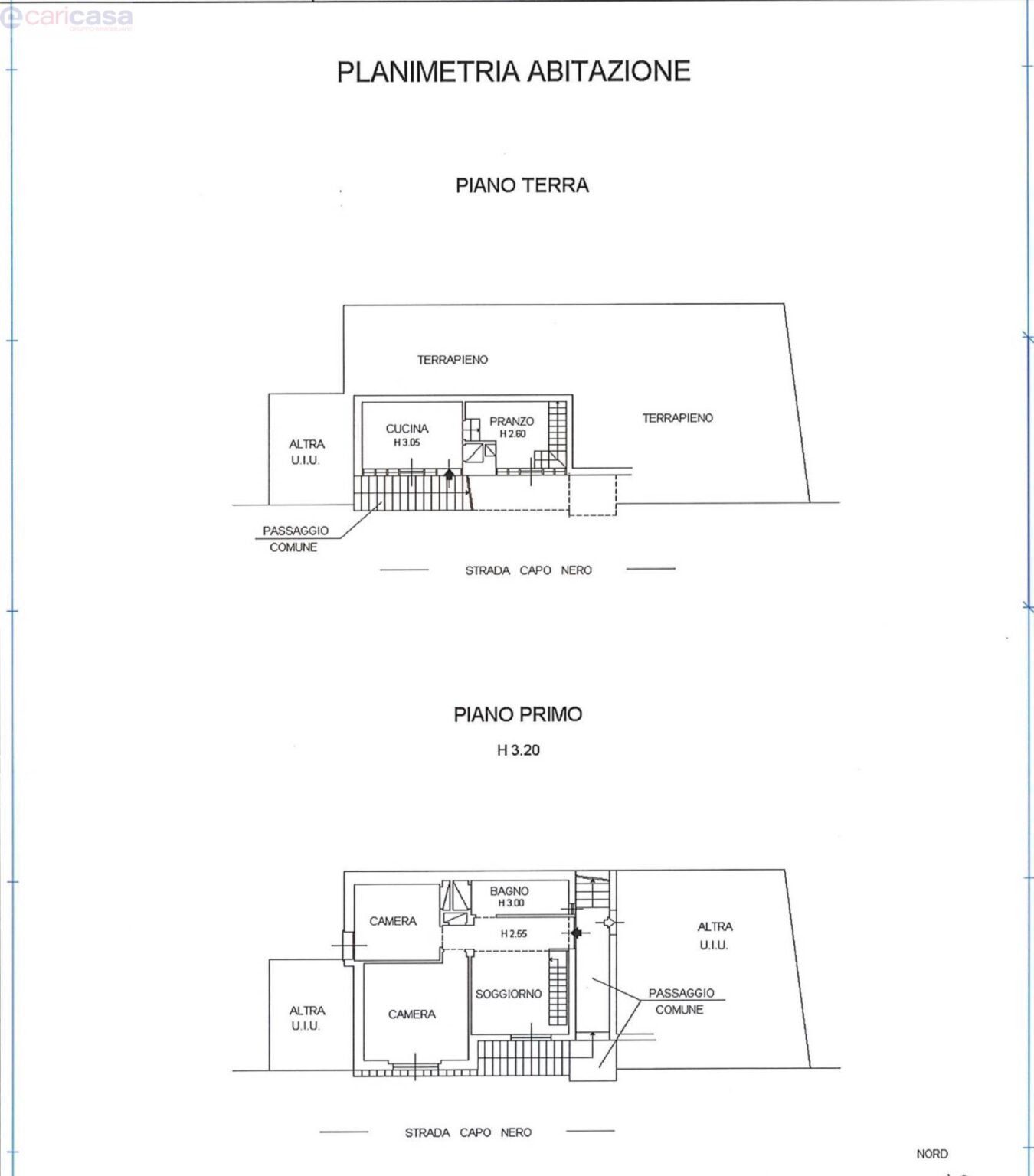
Sanremo – Capo Nero | Villa semi-indipendente con vista mare mozzafiatoIn una delle zone più prestigiose di Sanremo, a Capo Nero, proponiamo in vendita una graziosa casa semi-indipendente con splendida vista panoramica sul mare, davvero impagabile.L’abitazione ha una superficie di circa 80 mq ed è accessibile tramite una scala esterna che conduce al piano principale, dove troviamo: un accogliente soggiorno, un bagno, due camere da letto, di cui una cameretta con terrazzo.

Scendendo al piano inferiore tramite scala interna si accede alla sala da pranzo con cucina annessa, creando uno spazio conviviale e funzionale.Vi è anche un’altro spazio al piano terra da dedicare ed usufruire per prendersi il sole o per pranzare di circa 30 mq.La proprietà gode di una posizione strategica: a soli 10 minuti di auto dal centro di Sanremo a 5 minuti da Ospedaletti e a 5 minuti a piedi dalle spiagge Soluzione ideale sia come prima casa che come casa vacanze, grazie alla posizione, al panorama unico e alla vicinanza al mare.

1 / 1

SANREMO

SEDE
via Roma, 51
Sanremo IM

Vorresti ricevere maggiori informazioni su questo immobile?

novità immobiliari

Altri immobili

Ricerca Immobili

Località
Tipologia Immobile
Ricerca per Riferimento
Caratteristiche

Locali

Camere da letto

Bagni

Superficie

12 mq 2910+ mq

Prezzo

€0 €0+

Contatto diretto

Seguici sui nostri canali