Home > Immobili > vendita > appartamento – via giovanni pascoli

appartamento – via giovanni pascoli

€ 110.000
CSR2-1915

Sanremo

€110000
TIPOLOGIA:
Appartamento
CAMERE:
1
BAGNI:
1
SUPERFICIE:
45 mq
LOCALI:
2
RISCALDAMENTO:
Autonomo
PREZZO:
€110.000

A pochi minuti dall’ ospedale e dall’ aurelia bis di Sanremo, il gruppo immobiliare Caricasa propone in vendita appartamento in condominio in ottimo stato ed arredato, dotato di tutti i comfort.

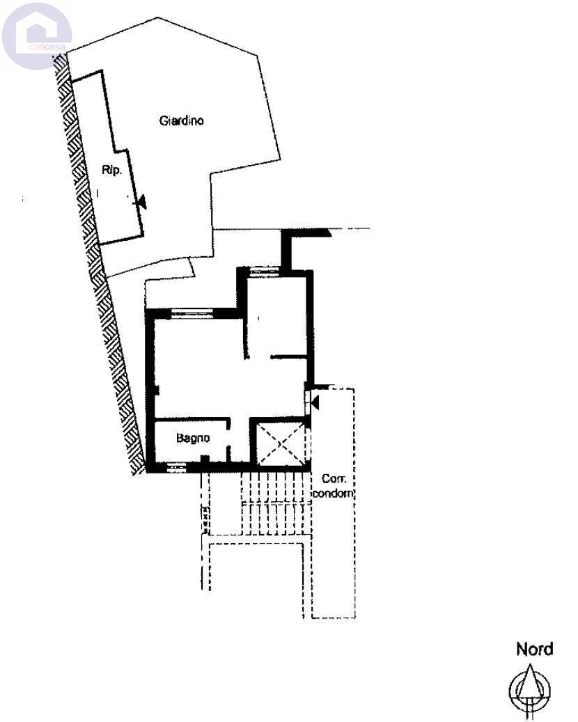
L’ immobile è composto da un ingresso su un disimpegno, cucina, una camera da letto, un bagno finestrato con box doccia e un ripostiglio.

Punto di forza dell’immobile è sicuramente la sua ampia corte esterna, in parte pistrellata, ideale per poter mangiare all’aria aperta e godersi le giornate di sole di tutte le stagioni.

L’appartamento è dotato di infissi in doppio vetro, tapparelle elettriche e tende da sole per l’esterno.

Riscaldamento autonomo e spese condominiali molto contenute.

Presenti dei posti auto gratuiti non privati proprio di fronte all’ condominio.

Possibilità di acquistare cantina a parte nel prezzo.

I supermercati, il centro di Sanremo, gli uffici sanitari e postali, le scuole di ogni ordine e grado, la pista ciclabile e le spiagge, sono tutti raggiungibili a pochi minuti dall’appartamento che si rende una soluzione ideale per clientela di tutte le età, come prima casa ma anche come seconda casa comoda al mare.

Ottimo investimento!.

1 / 1

SANREMO 2

SEDE
Corso Cavallotti, 158
Sanremo IM

Vorresti ricevere maggiori informazioni su questo immobile?

novità immobiliari

Altri immobili

Ricerca Immobili

Località
Tipologia Immobile
Ricerca per Riferimento
Caratteristiche

Locali

Camere da letto

Bagni

Superficie

12 mq 2910+ mq

Prezzo

€0 €0+

Contatto diretto

Seguici sui nostri canali