Home > Immobili > vendita > appartamento – via fossati avvocato michele

appartamento – via fossati avvocato michele

€ 138.000
CSL-1871

Cipressa

€138000
TIPOLOGIA:
Appartamento
CAMERE:
1
BAGNI:
1
SUPERFICIE:
36 mq
LOCALI:
2
RISCALDAMENTO:
Autonomo
PREZZO:
€138.000

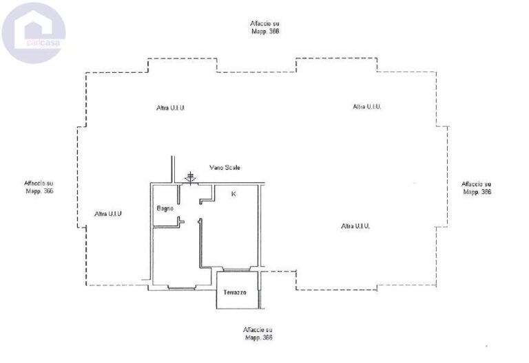
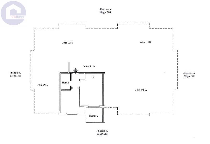
In un tranquillo complesso residenziale proponiamo in vendita un appartamento al secondo piano, composto da ingresso, disimpegno, soggiorno con angolo cottura, camera da letto, bagno e ampio terrazzo.L’immobile gode di un’ottima esposizione a sud e di una splendida vista mare.

Il riscaldamento è autonomo, garantito da pompe di calore che forniscono sia aria calda che fredda.

Le spese condominiali sono contenute.All’interno del condominio è disponibile un’area parcheggio riservata ai residenti.In 8 minuti di auto si raggiungono le spiagge, la nuova pista ciclabile, tutti i principali servizi e il centro di San Lorenzo al Mare.Durante il periodo estivo è attivo un servizio navetta (Mare Bus) che collega il complesso alla costa.Il punto di forza di questa soluzione è sicuramente il terrazzo vivibile, dal quale è possibile ammirare pienamente la vista mare.Ideale come casa vacanze per piccoli nuclei familiari in cerca di tranquillità e panorami suggestivi.

SAN LORENZO AL MARE

SEDE
via Roma, 6
San Lorenzo al Mare IM

Vorresti ricevere maggiori informazioni su questo immobile?

novità immobiliari

Altri immobili

Ricerca Immobili

Località
Tipologia Immobile
Ricerca per Riferimento
Caratteristiche

Locali

Camere da letto

Bagni

Superficie

12 mq 2910+ mq

Prezzo

€0 €0+

Contatto diretto

Seguici sui nostri canali